Heritage hotel Kurija Mihalović

2024
6332 m2
Marko Banić

Section
Postavite pitanje / Zatražite ponudu

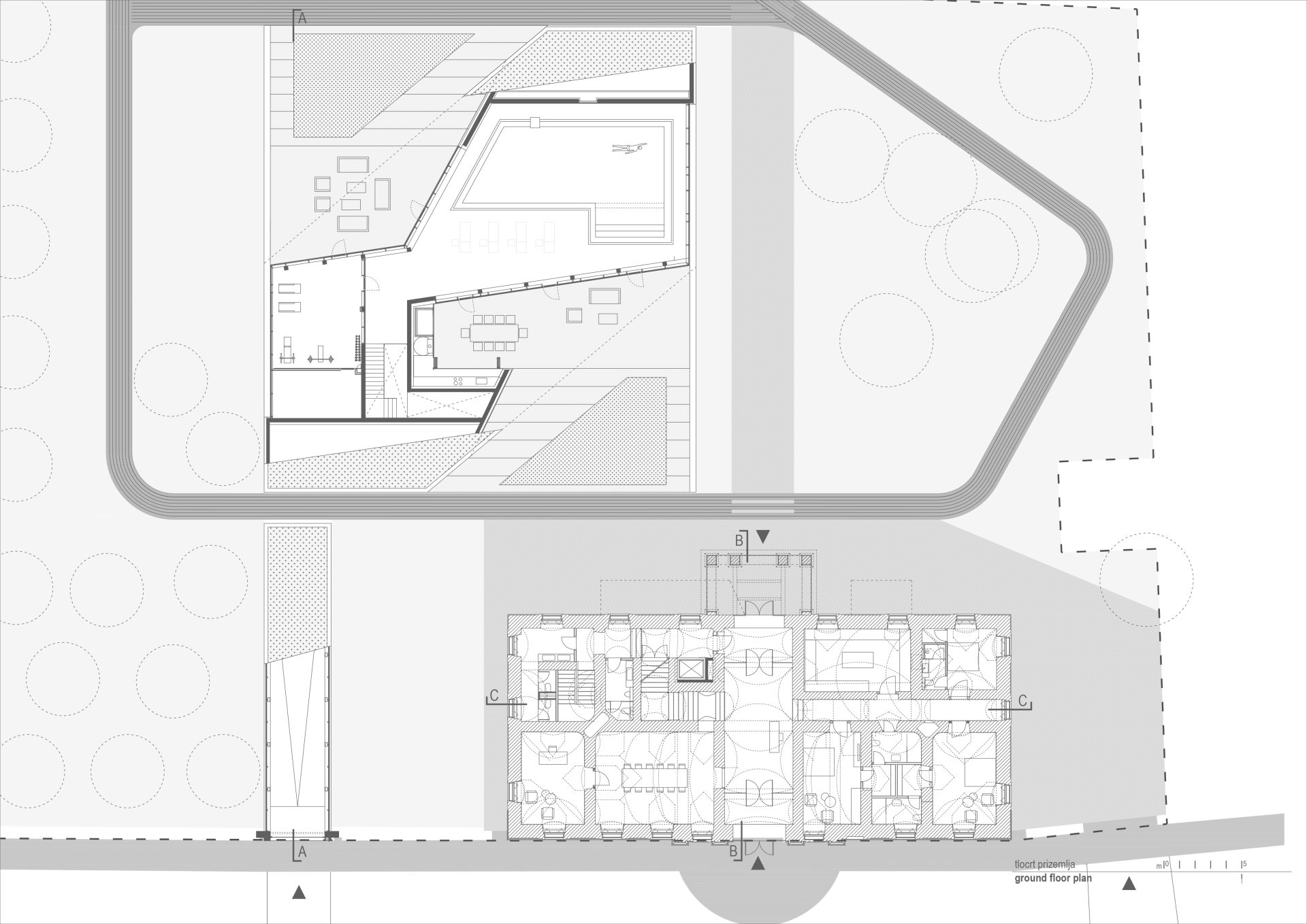
Konceptualni pristup ovom projektu temelji se na balansu između prošlosti i sadašnjosti, arhitekture i prirode te nekadašnjih i suvremenih potreba.

Glavni novi sadržaj, bazenska dvorana, smješta se u neposrednoj blizini Kurije te koncipira kao “savijena zemlja” – nabor u terenu koji služi kao pijedestal povijesnoj oblikovnosti, ostajući u drugom planu kako bi Kurija ostala centralni prostorni artefakt.

Uz niz manjih intervencija, u do tada ne nekorišteno krovište Kurije, uglavljuje se novi volumen, koji na dvorišnoj strani izbija kroz krovnu plohu u formi vidikovca te ss pogledom na nekadašnji povijesni perivoj i kroz bazen zaokružuje novi doživljaj priče o Kuriji Mihalović.

Projektni tim: Nenad Ravnić, Kata Marunica, Filip Vidović, Marin Piršić, Ivana Triva, Maja Bencetić, Mirta Mesić, Frane Dumandžić, Antonio Omičević, Nikica Pavlović, Goran Rukavina, Ante Sušić, Karla Tavić.
 

Tag

Pretplati se na egradnja.hr Newsletter

Ne propustite edukativan građevinski sadržaj. egradnja newsletter stiže na vašu adresu, prijavite se!