Mali stambenjak u padini: arhitektura koja ne prkosi terenu, već proizlazi iz njega
Umjesto nametanja unaprijed zamišljene forme, arhitektura stambene zgrade u zagrebačkoj ulici Barutanski Jarak razvijena je kao odgovor na konkretne uvjete terena i okoliša koji su utjecali na položaj, organizaciju prostora i konstrukciju zgrade.
Iza arhitekture koja dosljedno provodi logiku uvjetovanu terenom, konstrukcijom i funkcijom, stoji projektni tim studija SODAA na čelu s arhitektom Vedranom Jukićem.
Aruto kao prototip: kako stvoriti racionalnu i dugotrajnu zgradu prilagodljivu svakoj lokaciji?
"Glavna ideja bila je da zgrada prirodno proizađe iz terena i uklopi se u okruženje, stvarajući pritom novi identitet lokacije. Cilj nam je bio stvoriti kvalitetno stanovanje koje koristi prednosti lokacije", navodi se u opisu projekta Aruto.
Zgrada je istodobno projektirana kao svojevrstan prototip buduće serije sličnih stambenih objekata koje je investitor planirao razvijati. Od projektantskog tima tražio je dugotrajnu, racionalnu zgradu jasne organizacije i kontroliranog izraza, s naglaskom na kvalitetu svakodnevnog korištenja - vanjski prostori, svjetlo, privatnost te realnu izvedivost.
"Osnovne smjernice smo nadogradili kako bismo dobili kompaktan volumen i njegovo jasno pozicioniranje, čisto zoniranje (servisna baza/stambeni dio), vanjske prostore kao produžetak stanova te pročelje vođeno rasterom i mjerom otvora prema funkciji i osvjetljenju. Projektantski pristup na svakoj drugoj lokaciji bi bio sličan, ali bi ga diktirali specifični uvjeti lokacije. Kao jedno od temeljnih tipoloških pravila postavili smo da svaki stan, neovisno o veličini, ima punu funkcionalnu shemu i minimalno tri orijentacije“, objasnio nam je autor projekta, arhitekt Vedran Jukić.
Ključni izazov: istodobno osigurati stabilnost strme padine i dobiti uporabne vanjske prostore
Kako je parcela strma i nalazi se na klizištu, zgrada je od samog početka projektirana kao sustavni odgovor na navedene fizičke zahtjeve. Nagib parcele, visinske razlike i stabilnost tla tako su postali polazišta za oblikovanje prostora i konstrukcije.
"Ključni izazov bio je istovremeno osigurati stabilnost strme padine i dobiti uporabne vanjske prostore uz stanove. Proces smo postavili fazno: temeljenje na pilotima, formiranje platoa podrumske/prizemne etaže i stabilizacija padine kaskadama pa tek potom uvođenje gornjeg volumena", rekao nam je arhitekt.
U projektiranju su se oslanjali na geotehničke i geomehaničke podloge, koordinaciju sa statičarima te kontrolu detalja koji dugoročno utječu na ponašanje tla. Kako bi se bez improvizacije uskladili svi elementi, kao suvremeni alat koristili su preciznu 3D/BIM koordinaciju (teren–potporne konstrukcije–volumen).
Kako su se izveli piloti - temelj sigurnosti cijelog sustava
"Najvažnije je točno iskolčenje, postizanje projektirane dubine, promjera i vertikalnosti, kontrola armature i zaštitnog sloja te kvalitetna veza glava pilota s temeljnom konstrukcijom. Izvedba je bila standardna za bušene armiranobetonske pilote: bušenje rotacijskom bušilicom s pužnim svrdlom, ugradnja armaturnog koša i betoniranje do projektirane kote. U ovakvim uvjetima presudni su disciplina iskopa i upravljanje vodom jer izravno utječu na stabilnost bočnih strana bušotine i kvalitetu izvedbe", navodi arhitekt.
Kaskadne betonske žardinjere: tehničko rješenje kao dio arhitektonskog koncepta
Padina je učvršćena sustavom kaskadnih betonskih žardinjera koje ujedno oblikuju terasaste vrtove. Ta su tehnička rješenja postala sastavni dio arhitektonskog koncepta. Vedran objašnjava zašto:
"Žardinjere smo koncipirali kao uporabni i oblikovni dio stabilizacije padine. Umjesto skrivanja potpornih elemenata, pretvorili smo ih u jasnu terasastu geometriju koja istovremeno učvršćuje tlo i organizira vrtove. Tehnička logika ostaje čitljiva: vidi se kako se teren zadržava i rasterećuje, a istodobno se dobiva kvalitetan vanjski prostor, mjerilom primjeren stanovanju."
Kontrast materijala: tamna aluminijska baza s opečnim gornjim volumenom
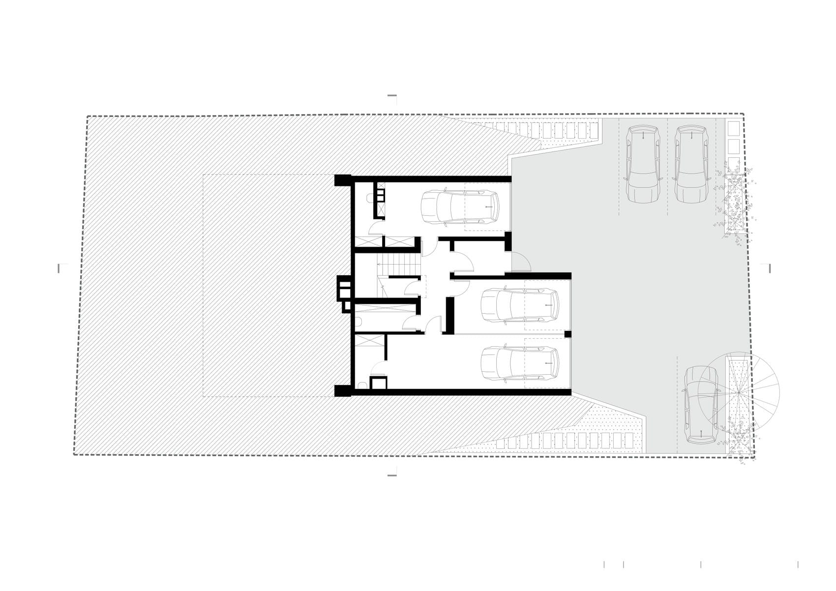
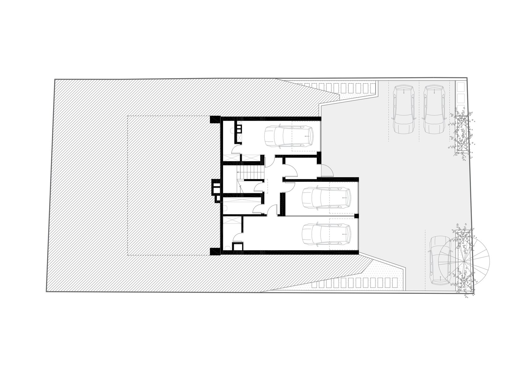
Homogena tamna aluminijska baza vizualno smanjuje masu zgrade i skriva tehničke prostore.Ulazna etaža istodobno je i garažna. Uvučeni kut podrumske etaže stvara dubok natkriveni ulaz, dok su garažna vrata integrirana u fasadnu oblogu.
Na tu se bazu nastavlja gornji volumen oblikovan kao kompaktan blok jasnog rastera.
Gornji volumen izveden je u dekorativnoj oblozi StoBrick 400 koja donosi autentičan izgled terakota opeke, trajnost i prepoznatljiv identitet zgrade.
"Želja je bila arhitekturu oblikovati u materijalima čija će prirodna patina s vremenom postati sastavni dio izraza", istaknuo je Vedran.
Osim što pruža mogućnost stvaranja izražajnih pročelja bogate vizualne dinamike, StoBrick klinker opeku karakterizira niska vodoupojnost, čime se garantira otpornost na vremenske uvjete i trajno reprezentativni izgled fasade.
Obloga je sastavni cio certificiranog fasadnog sustava StoTherm Cladding, koji zgradi pruža učinkovitu toplinsku izolaciju uz minimalnu debljinu sloja.
Sustav ne zahtijeva redovito obnavljanje ili prebojavanje, što će za investitora značiti smanjene troškove održavanja tijekom životnog vijeka ove zgrade.
Osjećaj boravka kao u kući: vrtovi kao produžetak stanova
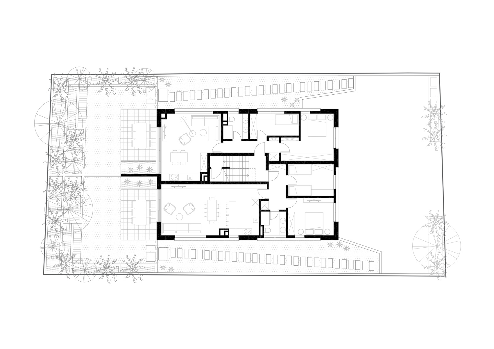
Zgrada broji tri stambene jedinice, svaku s jasnom i funkcionalnom organizacijom te snažnim odnosom između unutarnjih i vanjskih prostora, što značajno doprinosi kvaliteti stanovanja.
Dva stana u prizemlju povezana su s vlastitim vrtovima, koje su arhitekti zamislili kao produžetak stambenog prostora i glavne vanjske boravišne prostore.
"Vrtovi su dimenzionirani u skladu s veličinom stanova i preuzimaju ulogu primarnih vanjskih prostora, uklanjajući osjećaj boravka ispod razine tla. Time je uspostavljena ravnoteža između ukopanog volumena i kvalitete svakodnevnog korištenja."
Stan koji "diše": priroda, svjetlost i prozračivanje u srcu doma
Posebnost je trećeg stana, smještenog na jedinoj etaži iznad prizemlja, lobi s unutarnjim vrtom iznad stubišnog kraka, osvijetljen krovnim prozorom.
"Ideja je proizašla iz dvije potrebe: da stan na katu dobije vlastito prostorno središte s prirodnim svjetlom neovisno o rubnim fasadama te da se prostor iznad stubišnog kraka pretvori u aktivan dio stana. Budući da se u stan ulazi sa stubišnog podesta, taj se segment integrira u volumen stana i dobiva jasnije definiran ulazni prostor. Atrij/lobi s krovnim prozorom uvodi zenitalno svjetlo u sredinu tlocrta i omogućuje pasivno prozračivanje uzgonom pa i centar stana “diše” bez oslanjanja na strojarske sustave", rekao nam je arhitekt.
I ovdje dolazi do izražaja veza unutarnjih prostora i okoliša. Stan se dodatno otvara prema terasi s jedne strane i lođi s druge.
Najveća vrijednost projekta: jasnoća arhitekture, trajnost i tehnička preciznost
Za projektni tim studija SODAA vrijednost projekta Aruto leži u njegovoj suzdržanosti - u jasnoći arhitekture, trajnosti i tehničkoj preciznosti koja ne ovisi o formalnoj gesti, nego o kvaliteti izvedbe i dosljednosti koncepta.
"Najzadovoljniji sam time što su konstrukcija i arhitektonsko oblikovanje vođeni istom logikom: stabilizacija terena (piloti i kaskade) nije skrivena, nego postaje prostorni resurs koji organizira terase i vrtove. Drugo je jasnoća dispozicije i zoniranja (servisna baza/stambeni volumen) te reducirana forma gornjeg volumena koja uvodi red u heterogeno okruženje. Treće je kontrola detalja: miran raster, odmjeren odnos punog i otvora te dosljedna izvedbena disciplina. U projektu je “tehničko” uključeno u koncept od početka, kako ne bi naknadno opteretilo arhitekturu", komentirao je arhitekt.
Zaključno će istaknuti kako je suradnja s izvođačima bila ključna za uspješnu realizaciju projekta.
"Najviše se dobije kada su svi sudionici od početka usklađeni po pitanju tolerancije, redoslijeda zahvata i detalja izvedbe jer se upravo tu gradi kvaliteta i izbjegavaju zastoji", kaže Vedran Jukić.
Lokacija: Ulica Barutanski jarak, Zagreb
Projektni studio: SODAA
Autor: Vedran Jukić
Projektni tim: Jure Čudina, Dora Barović, Vesna Poljančić Terzić, Maja Porto, Ivana Rajkovača, Matija Sedak
Godina projekta: 2019. - 2020.
Godina realizacije: 2020. - 2025.
površina parcele: 606 m2
Bruto površina: 555 m2
Suradnici:
Fizika zgrade: Naravno, Nataša Hrsan
Konstrukcija: Tenzor, Ivica Šaban
Hidrotehnika: Mplan, Hrvoje Malčić
Termotehnika: LID strojari, Luka Čižmek
Elektroinstalacije: Vukušić projekti, Bojan Vukušić
Geodezija: Geoanda, Josip Andabaka
Sigurnost: Inspekting, Maksim Carević
Geomehanika: Geokol, Pavao Lončar
Vizualni identitet: Manasteriotti DS, Igor Manasteriotti
Brand strategija: Fabular, Anja Bauer
Fotogalerija
#Oznake
Materijali (tekstovi, fotografije, grafike i ostalo) na web stranicama egradnja.hr zaštićeno su intelektualno vlasništvo tvrtke T&S d.o.o. Zadar ili drugih pravnih osoba te su zaštićeni Zakonom o autorskim pravima. Ako želite naše materijale koristiti za edukacijske svrhe, slobodno nam se javite i rado ćemo vam izaći u susret.
Redakcija se ne mora slagati s mišljenjem autora i izjavama sugovornika te ne preuzima odgovornost za sadržaj reklamnih oglasa.

